0

合浦县人民医院关于采购3.0T核磁共振机房设计及造价服务的市场调研通告

我院拟在一层放射科西北侧的介入室区域,采用现DSA手术室、操作间、候诊、设备间改造为核磁共振3.0T设备医疗机房,欢迎具备符合相关设计资质的企业参与报价。有关事项通告如下:

一、项目名称

合浦县人民医院采购3.0T核磁共振机房设计及造价服务

二、采购服务内容及要求

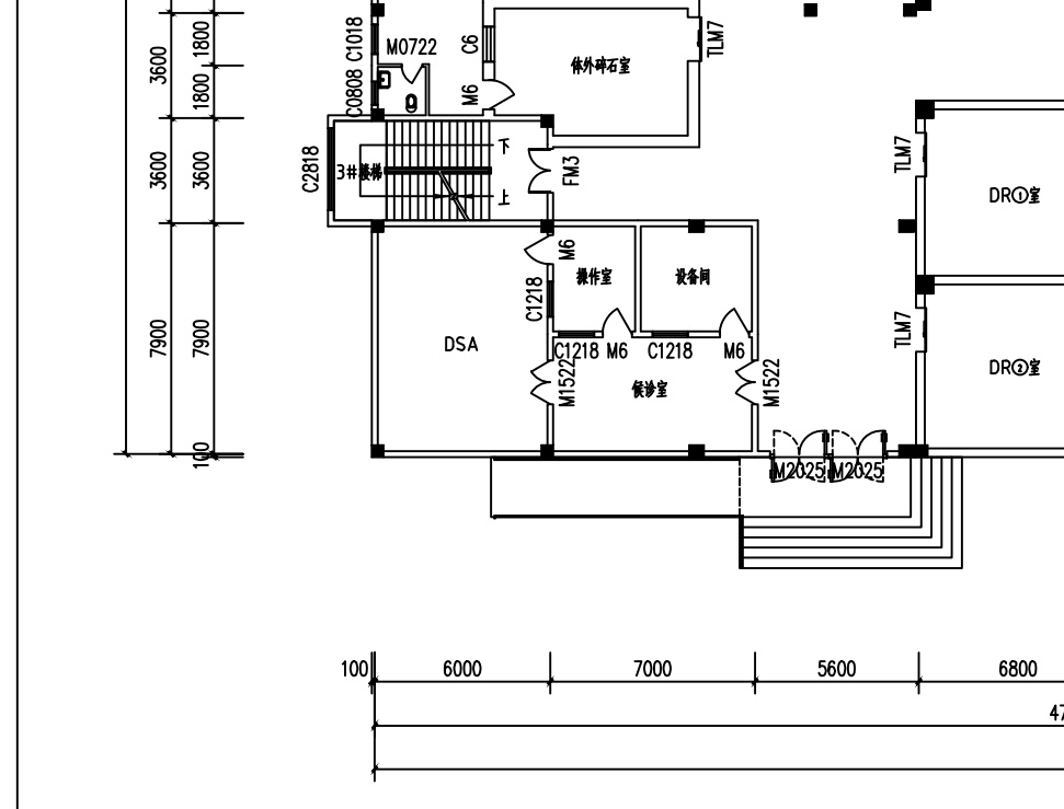
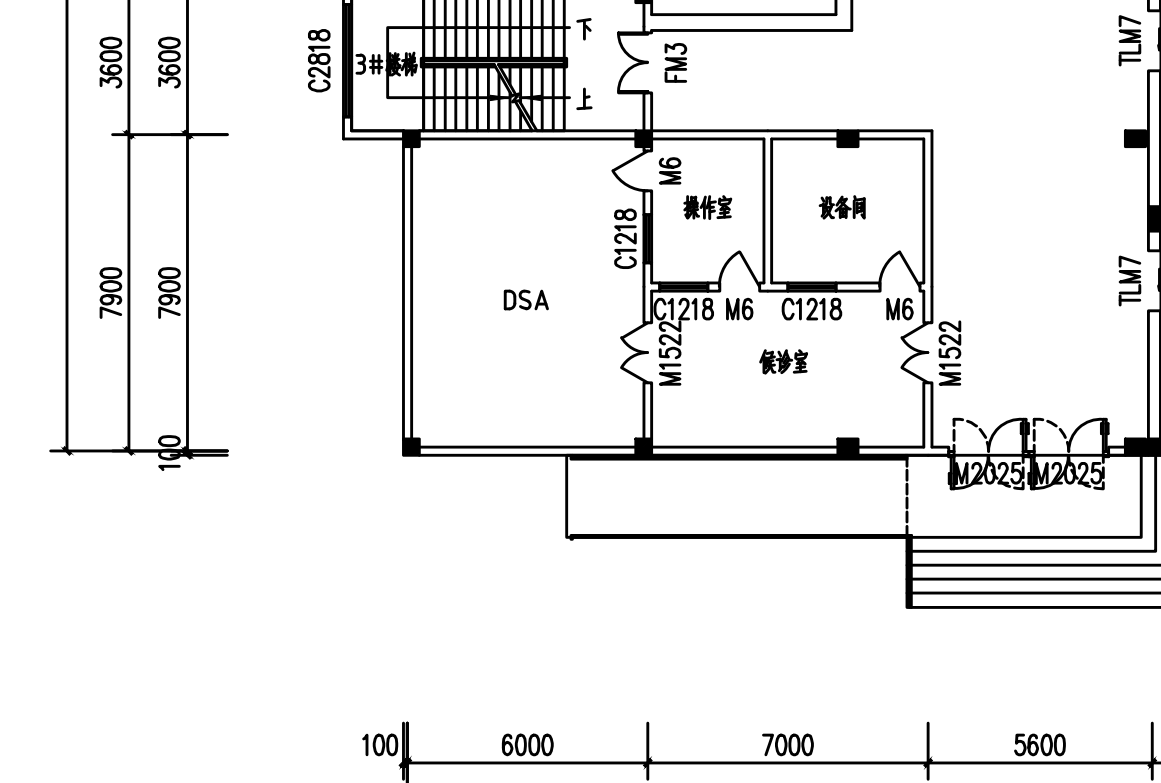
1.设计范围13*7.9米,102.7平方米。(附:平面图)

2.服务内容:包括整体方案设计和施工图设计

(包括但不限于拆除、建筑土建、给排水、电磁屏蔽防护、电气、暖通(含空调)、装饰装修、设备配套设施、整体效果图等 )满足设备使用的功能的全部设计及现场技术服务与指导,编制机房改造的概算、控制价(要求屏蔽材料及安装费用单列)。

三、询价单位

合浦县人民医院

四、报名单位资质资格

符合《中华人民共和国政府采购法》第二十二条规定,未被“信用中国”(www.creditchina.gov.cn)、中国政府采购网(www.ccgp.gov.cn)列入失信被执行人、重大税收违法失信主体、政府采购严重违法失信行为记录名单。具有合法有效的营业执照、税务登记证、组织机构代码证或三证合一(或多证合一)的营业执照,并具有相应资质。

五、报名材料

(一)要求报价人的法定代表人身份证复印件、企业营业执照副本复印件、企业资质证书副本复印件。

(二)报价单1份。

(三)上述材料均需加盖企业公章,并以PDF形式报送。

六、报名时间和方式

(一)报名时间:2025年10月15日上午8:00至2025年10月20日下午18:00

(二)报名方式:将报名材料按规定时间发送至总务科邮箱zwk7284371@163.com。

七、注意事项

(一)本项目不接受现场报名,有疑问请咨询:吴老师 0779-7284371(正常上班时间)。

(二)请按规定时间报送,逾期无效。

(三)报价含税收等一切费用。

(四)本次询价仅作为院内市场询价,不作直接采购。

 

 合浦县人民医院

  2025年10月15日

 

附件:平面图